

方向阀
液控单向阀SV10/20/30G SL10/20/30G
◆说 明
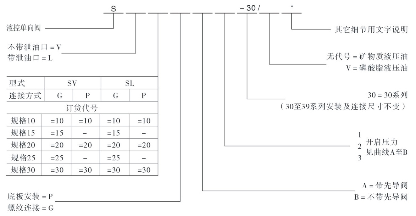
——液控单向阀
——连接尺寸按DIN24340
——底版安装或螺纹连接
——按需要有带泄油口和不带泄油口
——按需要有带先导阀和不带先导阀
——用先导阀缓冲释压
——可选三种开启压力
SV和SL型液控单向阀都是座式阀, 可以由液压开启而允许反向流动, 此种阀用来隔离局部压力回路, 即在管子破裂时防止负载降落的保护, 也可防止负载下爬。
此种液控单向阀主要包括阀体 ,主阀芯,先导阀芯,压缩弹簧和控制活塞。
SV型(无泄油口)
由A口至B口始终可以自由流动。反方向上则先导阀芯和主阀芯被弹簧和系统压力保持在阀座上。若X口供给压力油,则控制活塞被推向右。首先打开导阀芯 ,再打开主阀芯。于是油液先通过导阀, 再通过主阀。为了保证控制活塞能可靠的操纵阀,需要一定的最低控制压力。
SL型(带泄油口)
在原理上, 此阀与SV型有相同的功能。不同之处在于增加了泄油口Y,这就可以使控制活塞的环行面积与A口隔离。A口来的油压力只作用在控制活塞的面积A4上,从而有效降低此条件下所需的控制压力。
具体型号分为:
SV10GA SV10GB SV20GA SV20GB
SV30GA SV30GB SL10GA SL10GB
SL20GA SL20GB SL30GA SL30GB

产品名称  | 液控单向阀  | 
型号  | SV10/20/30G SL10/20/30G  | 
通径(mm)  | 10/20/30  | 
连接方式  | 管式连接  | 
控制方式  | 液控  | 
流动方向  | 单向  | 
公称压力(MPa)  | 31.5  | 
重量(Kg)  | 2.5/4.0/8.0  | 
介质  | 油  | 
温度范围  | -30-+80℃ | 
材质  | 铸铁  | 
是否定制  | 接受定制  | 
产地  | 山东  | 
标准  | ISO9001  | 





